Stroombaan 4

1181 VX Amstelveen

Details

Adres Stroombaan 4
1181 VX Amstelveen
Huurprijs € 190 per vierkante meter per jaar
Status Beschikbaar
Oppervlakte 1.334 m²
Units vanaf 78 m²
Hoofdbestemming Kantoorruimte

Omschrijving

OBJECT:
Modern en hoogwaardig kantoorgebouw gelegen tussen de Beneluxbaan en Van Heuven Goedhartlaan. Het kantoorgebouw is gelegen op loopafstand van winkelcentrum Het Stadshart en is goed bereikbaar met zowel auto, openbaar vervoer als met de fiets. In het gebouw is een nieuw multitenant-concept gestart waarin representatieve kantoorunits worden aangeboden, gelegen op de eerste en tweede verdieping. De verdiepingen worden momenteel gerenoveerd en opnieuw ingedeeld. Daarnaast biedt het gebouw goede parkeervoorzieningen, zowel bij het gebouw, als in de directe omgeving. Het kantoorgebouw beschikt over een eigen, afgesloten parkeerterrein.

Sinds kort wordt de gezamenlijke entree van het gebouw geëxploiteerd door De Huismeesters, die aldaar een gezellige ontvangst gecreëerd hebben met een prachtige espressobar. Hierdoor verandert de entree in een multifunctionele ontmoetingsplek waar huurders en gasten even ‘thuiskomen’, de krant lezen, overleggen en werken.

In de buurt van het gebouw bevinden zich tal van multinationals, waaronder Nestlé, HP, Dawn Foods, British American Tobacco en vele anderen. Op loopafstand vindt u meerdere winkel- en eetgelegenheden, alsmede het City Garden Hotel, een theater, evenementen locatie en het welbekende Cobra Museum.

OPPERVLAKTE:
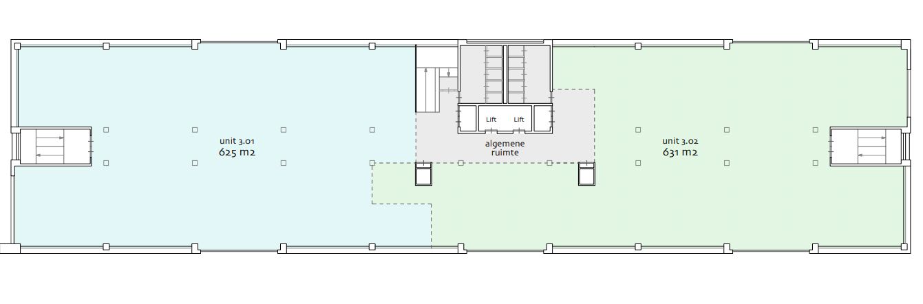
Momenteel is er ca. 1.256 m² v.v.o. kantoorruimte voor verhuur beschikbaar, als volgt verdeeld:
3e verdieping - ca. 1.256 m² v.v.o. kantoorruimte incl. opslag algemene ruimte (in overleg)
> Deelverhuur mogelijk vanaf 625 m² v.v.o.

HUURPRIJS:
Kantoorruimte: € 190,- per m² v.v.o. per jaar.

SERVICEKOSTEN:
€ 65,- per m² v.v.o. per jaar.

Bovengenoemde huurprijs dient te worden vermeerderd met BTW.

HUURTERMIJN:
5 jaar.

KANTOORUNITS:
Het kantoorgebouw biedt naast conventionele kantoorvloeren ook kant -en klare werkplekken en kantoorunits aan.
1e verdieping - unit 1.01 - ca. 78 m² v.v.o. kantoorruimte - € 1.700,- per maand

Bovengenoemde prijs is per maand inclusief servicekosten en dienen te worden vermeerderd met BTW.

OPLEVERINGSNIVEAU:
Voorzieningen/ installaties:
Het kantoorgebouw is onder andere voorzien van de navolgende zaken:
- gezamenlijke, representatieve en ruime entree met koffiecorner van De Huismeesters;
- bemande receptie tijdens kantooruren;
- twee 8-persoons liften;
- gescheiden sanitaire voorzieningen, met meerdere toiletruimtes;
- te openen, geluidwerende ramen;
- luchtbehandelings- en verwarmingssysteem;
- voorziening ten behoeve van brandpreventie;
- volledig automatische externe zonwering.

Kantoorunits:
- De vloer is vlak, schoon en gereed voor vloerbedekking, pvc of linoleum;
- Het plafond heeft een industriële uitstraling en is voorzien van LED-verlichting met bewegingssensoren;
- Een glasvezel patchpunt in de unit;
- De gangwanden zijn in glas uitgevoerd en worden voorzien van privacy-folie.

PARKEREN:
Het is mogelijk (tegen betaling) gebruik te maken het (afgesloten) parkeerterrein direct naast het kantoorgebouw, van de diverse parkeergarages (Q-park) behorende bij winkelcentrum Het Stadshart of een vergunning aan te vragen bij de gemeente. Informeer naar de mogelijkheden.

ENERGIELABEL:
Het gehuurde beschikt over een EPA-certificaat labelklasse: C.
Geldig t/m 23-05-2028.

BEREIKBAARHEID:
Per auto
Uitstekende bereikbaarheid door de ligging naast de Beneluxbaan (s109) en nabij Rijksweg A9 (afslag 5, Amstelveen). De Rijksweg A9 is direct verbonden met de Rijkswegen A2, A4 en A10 in de richting van Amsterdam, Utrecht, Den Haag en Haarlem.

Openbaar vervoer
OV-verbindingen en het busstation van Amstelveen zijn op loopafstand gelegen, waardoor het object zeer goed bereikbaar is:
O.a. bushaltes voor de lijnen 171 en 300 bevinden zich op korte loopafstand van het pand.
Tramlijnen 5 en 25 stoppen op slechts enkele minuten lopen en verbinden u met NS-Station Amsterdam Zuid, het WTC, de Zuidas en Amstelveen Westwijk.
Terug naar overzicht