Jozef Israëlskade 48 e

1072 SB Amsterdam

Details

Adres Jozef Israëlskade 48 e
1072 SB Amsterdam
Huurprijs € 400 per vierkante meter per jaar
Status Beschikbaar
Oppervlakte 183 m²
Units vanaf 183 m²
Hoofdbestemming Kantoorruimte
Ligging Bedrijventerrein, Winkelgebied stadscentrum
Bouwjaar 1989

Omschrijving

OBJECT & OMGEVING
Het kenmerkende kantoorgebouw is gelegen aan het fraaie Amstelkanaal met z’n groene kades op de overgang van de geliefde wijken De Pijp en de Rivierenbuurt. De Pijp staat bekend om haar vele leuke kroegen, restaurants, winkels en natuurlijk de Albert Cuyp markt. Tevens bevinden zich op loopafstand de bruisende Scheldestraat en het Cornelis Troostplein. In het naastgelegen Hotel Okura Amsterdam zijn een tweetal Michelin sterren restaurants gevestigd. Daarnaast beschikt het hotel over vergader- en congresfaciliteiten.

Het Emerald House heeft een totale verhuurbare oppervlakte van circa 4.600 m² verdeeld over de begane grond en 4 boven gelegen verdiepingen. Het kantoorgebouw beschikt tevens over circa 80 parkeerplaatsen, hetgeen uniek is voor een binnenstedelijke locatie in Amsterdam.

BESCHIKBARE RUIMTE
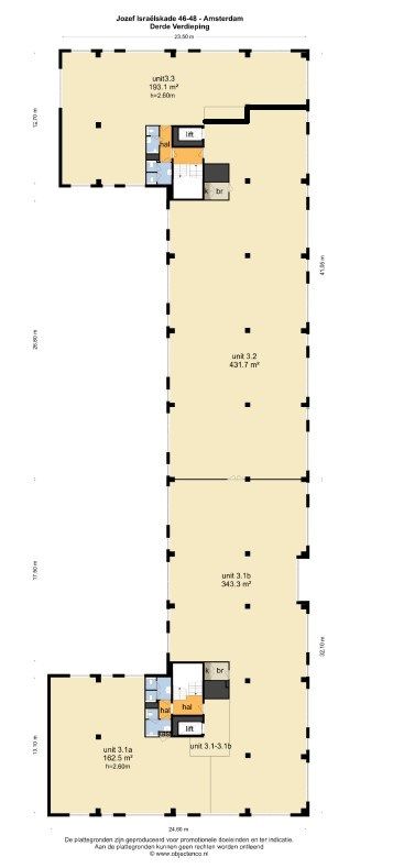
Het totale verhuurbare oppervlakte bedraagt circa 4.600 m² kantoorruimte. Voor verhuur komt er circa 183,47 m² v.v.o. kantoorruimte beschikbaar.
3e verdieping - unit 3.1a - 183,47 m² v.v.o. kantoorruimte

BESCHIKBAAR
Per 1 december 2026.

PARKEREN
Voor het gebouw geldt een gunstige parkeernorm van 1 parkeerplaats per circa 60 m² v.v.o. gehuurde kantoorruimte.

HUURPRIJZEN
Kantoorruimte: Vanaf € 400,- per m² v.v.o. per jaar;
Parkeerplaats: € 5.500,- per parkeerplaats per jaar;
Bovengenoemde prijzen dienen te worden vermeerderd met BTW.

SERVICEKOSTEN
€ 65,- m² v.v.o. per jaar, te vermeerderen met BTW als verrekenbaar voorschot.

HUURPRIJSBETALING
Per kwartaal vooruit.

OPLEVERINGSNIVEAU GEHUURDE
Huidige staat.

OPLEVERINGSNIVEAU GEBOUW
KANTOORRUIMTEN
- Gemeenschappelijke sanitaire voorzieningen per verdieping (douche op de begane grond);
- Mechanische ventilatie;
- Topkoeling;
- Lift;
- Te openen ramen;
- Glasvezel;
- Zonnepanelen;
- Verwarming;
- Zonwering buitenzijde (zon beschenen zijde);
- Tapijt;
- Glazen scheidingswanden;
- Pantry;
- Akoestisch spuitplafond (antraciet);
- Wood-up wandafwerking (deels);
- Houten room dividers.

INDELING
- Af te sluiten lunch/pantry ruimte;
- 2 concentratiewerkplekken/ belhokjes;
- 1 vergaderruimte;
- Open werkplekken.

DUURZAAMHEID
Het gebouw beschikt over een energielabel A en is voorzien van zonnepanelen.

BEREIKBAARHEID
Per auto:
Het stadsdeel Zuid is gelegen tussen het Centrum van Amsterdam en de Zuidas, waardoor Emerald House zeer goed bereikbaar is met de auto. De afslag S109 van de Ringweg A10 ligt op slechts drie minuten. Vanaf Luchthaven Schiphol rijdt u met de auto binnen 20 minuten naar het Emerald House.

Per openbaar vervoer:
Ook met het openbaar vervoer is Emerald House zeer goed bereikbaar. Direct voor het gebouw stoppen tram 12 en 25 met verbindingen naar het Museumplein en Amsterdam CS. Op ca. 5 min lopen zijn de metrohalte de Pijp en Europaplein van de Noord-/Zuidlijn gelegen. Treinstation Amsterdam Amstel (met tram 12 binnen 7 minuten te bereiken) zorgt voor de snelste verbinding voor treinreizigers van en naar Utrecht.

Station Amsterdam Zuid (5 minuten met bus 65 te bereiken) en Amsterdam RAI zorgen voor een goede treinverbinding met onder andere Rotterdam en Den Haag.
Terug naar overzicht