Schinkelkade 44 H

1075 VK Amsterdam

Details

Adres Schinkelkade 44 H
1075 VK Amsterdam
Huurprijs € 2.250 per maand
Status Beschikbaar
Oppervlakte 81 m²
Units vanaf 81 m²
Hoofdbestemming Kantoorruimte
Bouwjaar 1916

Omschrijving

OBJECT
Het object is gelegen aan de Schinkelkade 44 te Amsterdam, in de populaire Schinkelbuurt in Amsterdam Zuid, aan de rand van het Vondelpark en de opkomende Schinkel, wat zich kenmerkt als broedplaats voor creatieve bedrijven. De ligging aan het water en nabij het Vondelpark geeft de locatie een rustige uitstraling, terwijl alles wat onze bruisende hoofdstad te bieden heeft om de hoek is. Het kantoor bestaat uit circa 80,5 m² v.v.o. hoogwaardig gerenoveerde kantoorruimte en beschikt over een tuin.

In de directe omgeving is er een grote diversiteit aan winkels, voorzieningen en horecagelegenheden zoals Bar Bonnie, de Vondeltuin en Ron Gastrobar. Al met al is er veel te doen in deze leuke en mooie buurt.

OPPERVLAKTE
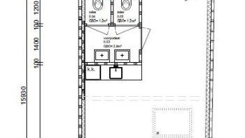
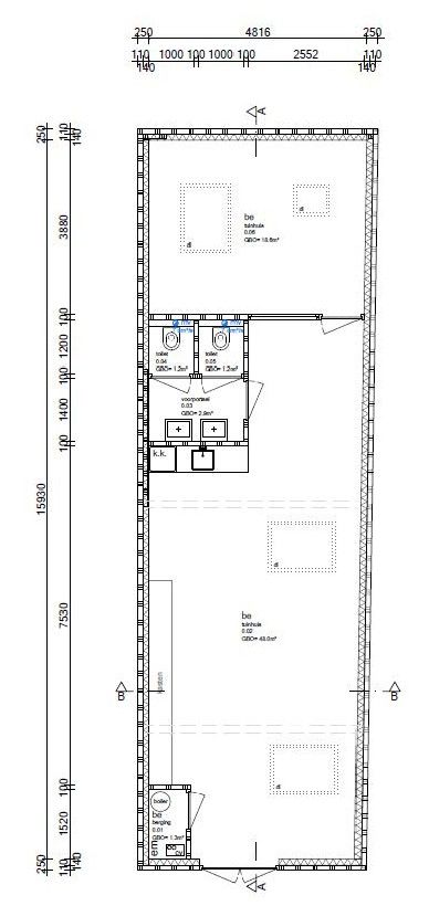
Op dit moment is circa 80,5 m² v.v.o. kantoorruimte voor verhuur beschikbaar, welke als volgt in het gebouw is onderverdeeld:
- Tuinhuis ca. 80,5 m² v.v.o. kantoorruimte

PARKEREN
In de directe omgeving is voldoende betaald parkeren mogelijk. Parkeervergunningen zijn aan te vragen bij stadsdeel Oud-Zuid.

HUURPRIJZEN
Kantoorruimte: € 2.250,- per maand, te vermeerderen met BTW.
Servicekosten: n.t.b.

Beschikbaarheid:
Per 1 september 2026.

BTW:
Huurder dient voor meer dan 90% BTW belastbare prestaties te verrichten in het gehuurde. Indien huurder op enig moment niet aan dit criterium voldoet, zal de huurprijs met een nader te bepalen bedrag worden verhoogd, teneinde het financiële nadeel voor verhuurder volledig te compenseren.

OPLEVERINGSNIVEAU
Het object zal volledig gerenoveerd opgeleverd worden, onder andere voorzien van:
- Hoogwaardige plafond- en vloerafwerking;
- (LED) verlichting;
- Hoogwaardige toiletgroep(en);
- Pantry;
- Elektra en IT bekabeling;
- Airconditioning.

ENERGIELABEL
Het object beschikt over een energielabel A.

BEREIKBAARHEID
De kantoorruimte is uitstekend bereikbaar met het openbaar vervoer middels diverse bus- en tramhaltes gelegen aan de Amstelveenseweg, Zeilstraat en Hoofddorpplein. De ringweg A10 is slechts enkele minuten rijden via S107 of S106 waardoor u binnen 15 minuten op Schiphol bent.

Per auto:
Met eigen vervoer uitstekend bereikbaar vanaf A10 via Hoofddorpplein-Aalsmeerweg (S107), via Surinameplein-Amstelveenseweg (S106) en via Stadionplein- Amstelveenseweg (S108). Parkeren kan voor de deur door middel van betaald parkeren of met vergunning.

Per openbaar vervoer:
Door de uitstekende ligging van het object is de bereikbaarheid met het openbaar vervoer zeer goed. De kantoorruimte is met tramlijn 2 (Amsterdam Centraal – Amsterdam Nieuw Sloten) en buslijn 15 (Amsterdam Zuid-WTC – Amsterdam Sloterdijk) zeer goed te bereiken.

Voor meer informatie of het plannen van een bezichtiging neem je contact op met TREC.
Terug naar overzicht