Atoomweg 50

3542 AB Utrecht

Details

Adres Atoomweg 50
3542 AB Utrecht
Huurprijs € 160 per vierkante meter per jaar
Status Beschikbaar
Oppervlakte 442 m²
Units vanaf 66 m²
Hoofdbestemming Kantoorruimte
Ligging Bedrijventerrein
Bouwjaar 1975

Omschrijving

OBJECT:
Het centraal gelegen Newday Offices, aan de Atoomweg 50 is een zeer representatief kantoorgebouw. Het is uniek gelegen op slechts 2 minuten rijden van de rijksweg A2, daarnaast zijn er meer dan 120 parkeerplaatsen.

Hier komen iedere dag meer dan 30 bedrijven samen om te werken, te vergaderen, te netwerken én om lekker te ontspannen tijdens een heerlijke lunch of borrel. Huurders en hun gasten krijgen een warm ontvangst door de clubmanager, in de representatieve entree. Er zijn maar liefst 11 grotere en kleinere vergaderzalen, een loungecafe met koffiebar en een gezellige binnentuin. De werkplekken zijn strak ingericht en van alle gemakken voorzien.

Voor verhuur zijn er momenteel diverse kantoorruimten beschikbaar gelegen op de begane grond en de derde verdieping.

BESCHIKBAARHEID:
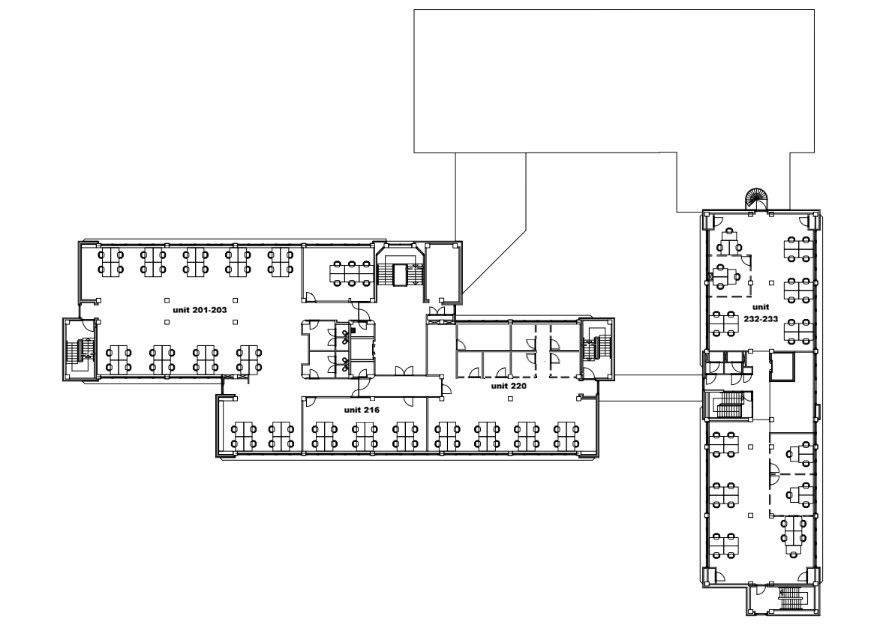
Circa 442 m² v.v.o. kantoorruimte is voor verhuur beschikbaar, welke als volgt in het gebouw zijn onderverdeeld:

2e verdieping > Unit 220 > ca. 295 m² v.v.o. kantoorruimte > Per direct

Managed office:
1e verdieping > Unit 113 > ca. 66 m² v.v.o. kantoorruimte > Per 01-09-2025
3e verdieping > Unit 301 > ca. 81 m² v.v.o. kantoorruimte > Per direct

Kantoorunits:
Newday Offices biedt kant en klare werkplekken en kantoorunits aan. Eventueel kunnen de kantoorunits geschakeld verhuurd worden om grotere oppervlaktes te creëren, informeer naar de mogelijkheden!

HUURPRIJZEN:
Kantoorruimte: € 160,- per m² v.v.o. per jaar, te vermeerderen met BTW.
Managed office: € 250,- per werkplek per maand, te vermeerderen met BTW.
Shared office: € 300,- per m² v.v.o. per jaar, te vermeerderen met BTW.
Schoonmaakkosten (optioneel): € 17,50 per werkplek per maand, te vermeerderen met BTW.
Parkeerplaats: € 62,50 per parkeerplaats per maand, te vermeerderen met BTW.

PARKEREN:
De parkeernorm bij dit gebouw bedraagt momenteel 1:43.

LEVERING & DIENSTEN:
Door of vanwege Verhuurder wordt de levering van de volgende zaken en diensten
verzorgd:
- Aansluiting op internet al dan niet door middel van een draadloos netwerk, zonder garantie van beschikbaarheid;
- Koffie en thee faciliteiten;
- Gebruik postadres;
- Gebruik van pantry/keuken en apparatuur;
- Aansluiting op elektriciteitsnet;
- Glazenwassen buitenzijde;
- Schoonmaak van algemene ruimtes.

VOORZIENINGEN:
De huurder heeft binnen de locatie waarin het gehuurde zich bevindt het medegebruik van de hierna genoemde zaken en voorzieningen.
a. Entree
b. Sociale hart
c. Receptiedienst
d. Koffie en thee voorziening
e. Gangen
f. Vergaderzalen
g. Lunchruimte (op basis lunch abonnement)
h. Gasten parkeren (op basis van beschikbaarheid)
i. Huurders parkeren (op basis van parkeer abonnementen)
j. Pantry’s verspreid over het gebouw
k. Toiletgroepen per verdieping
l. Lift
m. Huidige koel- en verwarmingsinstallatie
n. Draadloos internet, Wifi in de algemene ruimtes
o. Onbeperkt gebruik buitenruimte

ENERGIELABEL:
Het kantoorgebouw beschikt over een energielabel A.

BEREIKBAARHEID:
Per auto
Het gebouw is zeer goed bereikbaar vanaf de rijksweg A2 (Amsterdam - Den Bosch) afrit 7 (Utrecht Centrum / Leidsche Rijn Centrum).

Per openbaar vervoer
Per openbaar vervoer is het kantoorgebouw tevens goed bereikbaar. Aan de Atoomweg bevinden zich haltes van buslijn 38. Deze lijn onderhoudt een goede verbindingen met
onder meer centraal station Utrecht en station Maarssen.
Terug naar overzicht