De Corridor 6

3621 ZB Breukelen

Details

Address De Corridor 6
3621 ZB Breukelen
Rental price € 115 per square meter per year
Status Available
Surface 930 m²
Units from 200 m²
Main destination Office space
Construction year 2007
Energy label B

Description

OBJECT
De Corridor 6 te Breukelen ligt op een uitstekende zichtlocatie aan één van de belangrijkste snelwegen van Nederland - de A2 - waar dagelijks ca. 300.000 auto’s passeren. Tevens is het NS-station Breukelen op 5 minuten loopafstand gelegen Dit maakt het gebouw tot een uitstekende locatie om lokale, nationale en internationale markten te bereiken.

Het gebied ‘Breukelerwaard’ waar De Corridor zich in bevindt is gelegen in Breukelen pal langs de A2. Deze locatie is zeer geliefd bij organisaties welke een focus hebben op onder andere goede bereikbaarheid en zichtbaarheid. Dit is ook te merken aan enkele nieuwe ontwikkelingen in de omgeving, zoals een nieuw kantoor van Securitas en het nieuwe hoofdkantoor en showroom van Meubelfabrikant Leolux in de omgeving. Ook de bestaande voorzieningen zoals het Van der Valk hotel maken dit deel van Breukelen tot een aantrekkelijk vestigingsgebied voor organisaties.

Op het bedrijventerrein zijn een aantal aansprekende namen gevestigd zoals KIA Motors
Nederland, Regus en LeasePlan Occassions.

BESCHIKBARE RUIMTEN
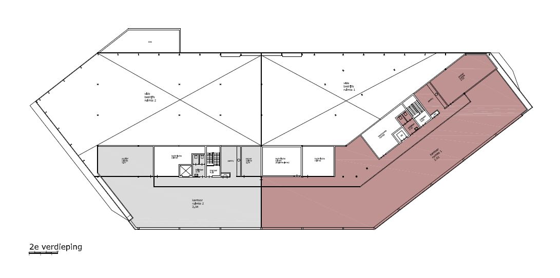
Voor verhuur is circa 930 m² v.v.o. kantoorruimte beschikbaar, welke als volgt in het gebouw zijn onderverdeeld:
2e verdieping - ca. 930 m² v.v.o. kantoorruimte

PARKEREN
Er zijn ruim voldoende parkeerplaatsen beschikbaar in de aangrenzende parkeergarage.

Daarnaast is bij het station het P+R parkeerterrein Breukelen gelegen met 704 gratis parkeerplaatsen. Deze is bereikbaar door middel van een voetgangersbrug naar het station en bevindt zich op loopafstand van het gebouw.

HUURPRIJZEN
Kantoorruimte: € 115,- per m² v.v.o. per jaar;
Parkeerplaats: € 800,- per plaats per jaar.

Bovengenoemde huurprijs dient te worden vermeerderd met BTW.

Servicekosten: Nader te bepalen.

OPLEVERINGSNIVEAU
De kantoorruimte wordt in de huidige staat opgeleverd inclusief de navolgende voorzieningen:
- Gemeenschappelijke entree;
- Systeemplafonds voorzien van verlichting;
- Pantry;
- Glasvezel;
- Airco;
- Databekabeling (om niet ter overname);
- Lift;
- Huidige indeling middels scheidingswanden;
- Sanitaire voorzieningen.

BEREIKBAARHEID
Het object ligt direct aan de Rijksweg A2 tussen Utrecht en Amsterdam. Met Breukelen NS op loopafstand en de directe toegang tot de A2 is de bereikbaarheid uitstekend te noemen.

Per auto:
Het bedrijvenpark ligt pal langs de A2 en is vanuit de gehele Randstad bereikbaar via afslag Breukelen. Zowel Amsterdam, Schiphol en Utrecht bevinden zich op minder dan 20 minuten rijden met de auto.

Per openbaar vervoer:
Het object is tevens uitstekend bereikbaar met het openbaar vervoer, zowel per bus als met de trein. Het NS-station bevindt zich op loopafstand. De trein van en naar Utrecht CS gaat, in de spitsuren, vier keer per uur met een reisduur van 10-15 minuten.

Meer informatie vindt u in onze brochure of neem contact met ons op via 020-7670330.
Back to overview